Overview
- Updated On:
- mars 4, 2026
- 5 Bedrooms
- 2 Bathrooms
- 250 m2
Descriptif du bien
Jolie maison de caractère se situant au cœur du village de Dornes, à seulement 15 minutes de Moulins-sur-Allier.
D’une superficie habitable d’environ 250 m², cette maison élevée sur trois niveaux offre de beaux volumes et conserve de nombreux éléments anciens.
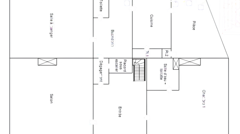
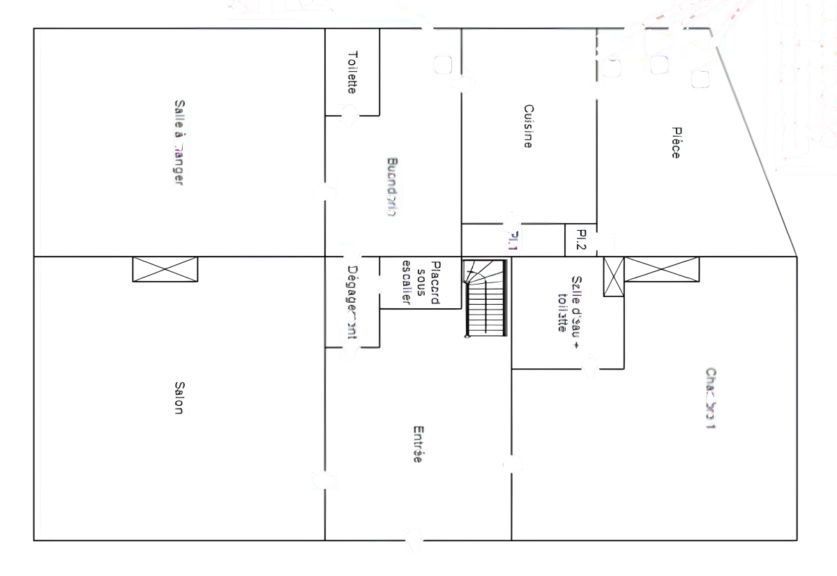
Au rez-de-chaussée, une entrée dessert plusieurs pièces de vie, comprenant un salon, une salle à manger et une cuisine. Un grand espace avec salle d’eau complète ce niveau et offre des possibilités d’aménagements complémentaires.
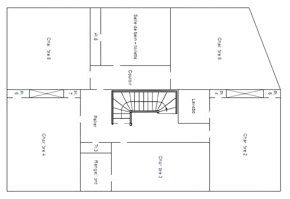
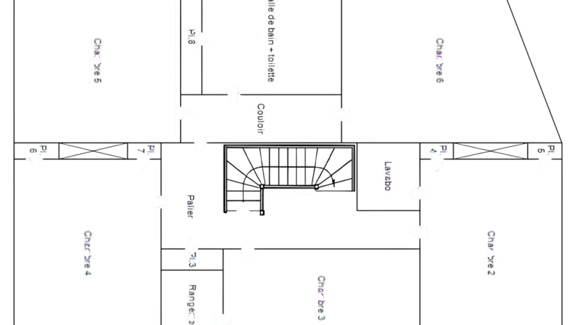
À l’étage, un palier dessert cinq chambres, ainsi qu’une grande salle de bain. Le dernier niveau accueille un grenier, offrant un potentiel d’aménagement supplémentaire.
En annexes, la propriété dispose d’un jardin clos de murs, de deux dépendances ainsi que d’un garage double. Le tout sur une parcelle de 764m2.
Des travaux de rénovation sont à prévoir, mais cette maison constitue une base saine et authentique, idéale pour un projet familial ou un projet d’accueil.
Caractéristiques techniques :
Chauffage central fioul
Menuiseries bois simple vitrages
Tout à l’égout
Pour plus d’informations, veuillez nous contacter.
Honoraires à la charge du vendeur.
Les informations sur les risques auxquels ce bien est exposé sont disponibles sur le site Géorisques : www.georisques.gouv.fr.
Date de réalisation du diagnostic énergétique : 19/03/2025
Consommation énergie primaire : 322 kWh/m²/an (Classe F)
Consommation d’énergie finale : non communiqué.





















