Overview
- Updated On:
- mai 9, 2026
- 1 Bedrooms
- 1 Bathrooms
- 90 m2
Descriptif du bien
Aux abords du charmant village thermal de Saint-Honoré-les-Bains, venez découvrir cette jolie maison située au calme, proche du centre bourg et de divers chemins de randonnées.
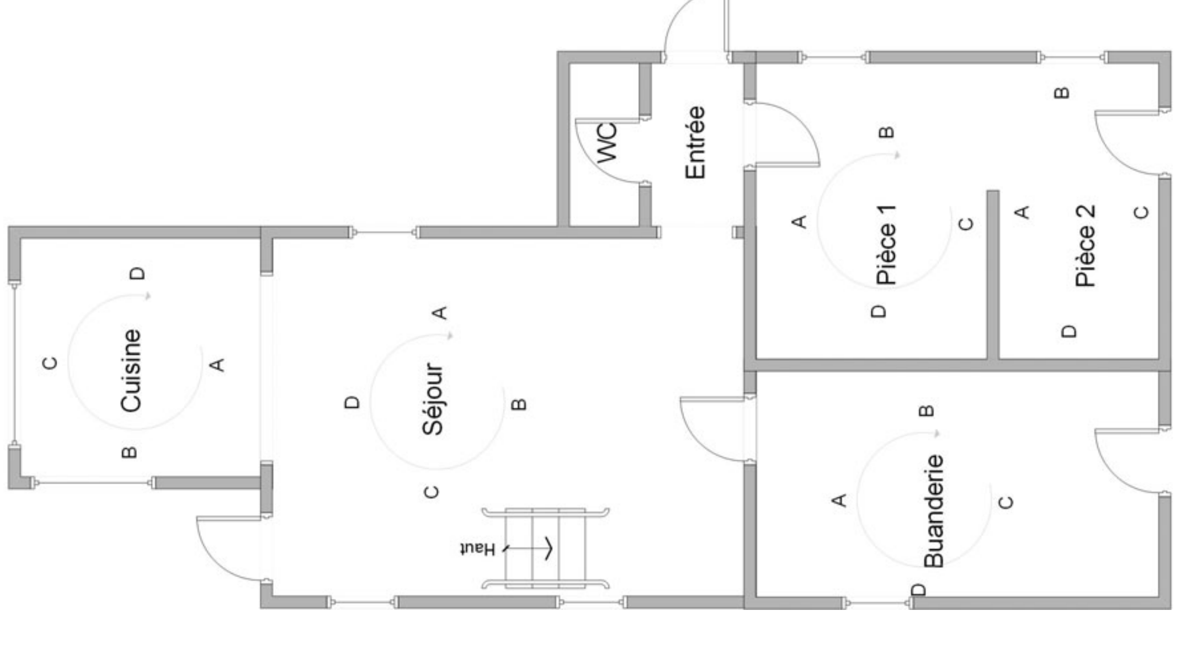
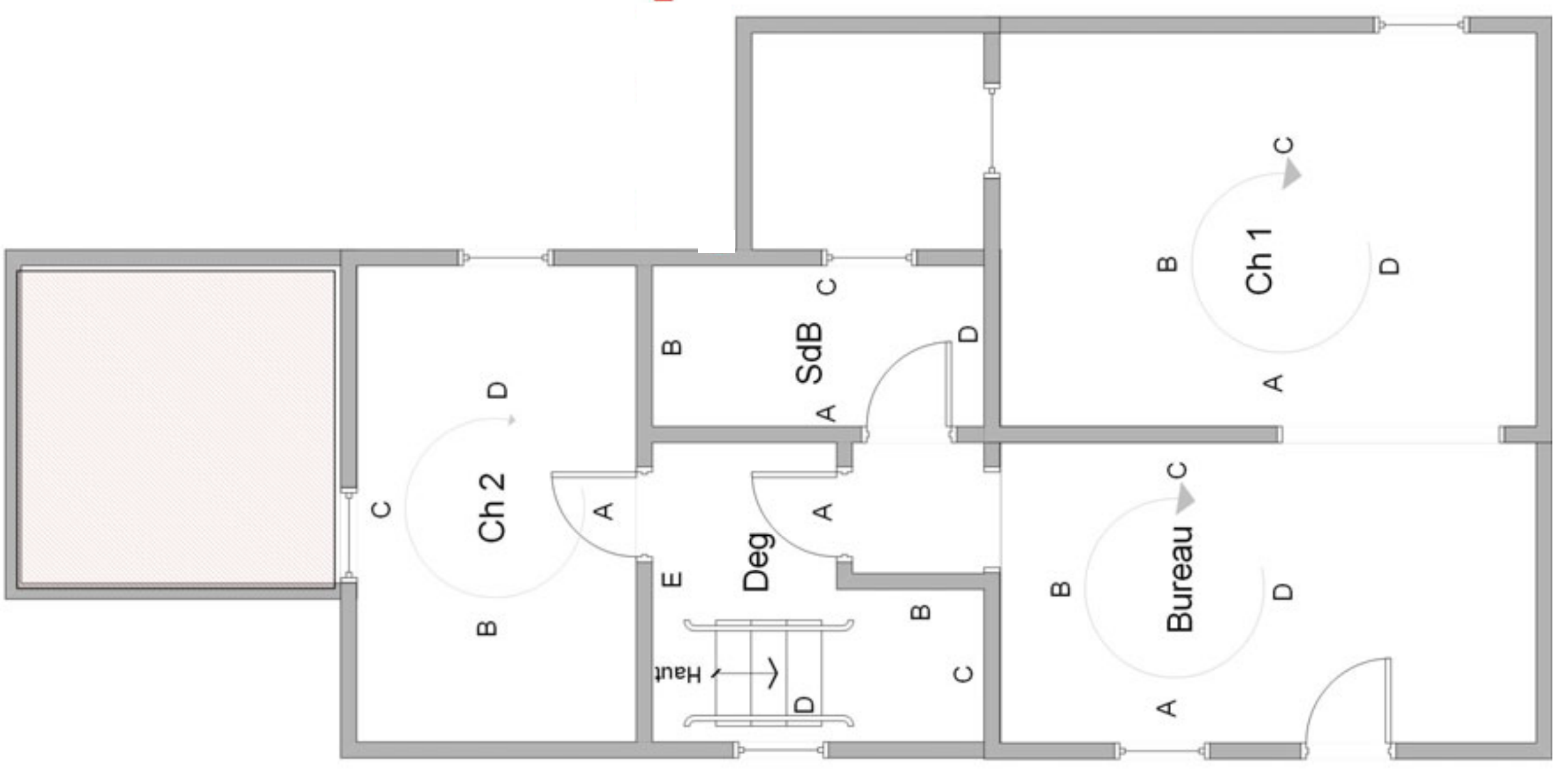
La maison se compose au rez-de-chaussée d’une entrée desservant une pièce de vie, une cuisine suivie d’un WC, d’un espace buanderie et de petites dépendances accessibles depuis l’habitation. A l’étage, un palier dessert un grand espace de 30m2 faisant office de salon, suivi d’une chambre, d’une salle d’eau avec WC et d’un grenier aménageable. L’étage possède également un accès indépendant donnant sur le salon ce qui en fait un espace idéal pour recevoir. Une chambre supplémentaire peut y être créée facilement.
L’ensemble est entouré d’un beau jardin arboré avec une jolie vue sur les champs environnants.
L’habitation est chauffée avec deux poêles à bois et des radiateurs électriques en appoint. La maison est également raccordée au tout à l’égout et à la fibre. Huisseries en simple vitrage et travaux à prévoir.
Taxe foncière : 460€
Pour plus d’informations, n’hésitez pas à me contacter.
Honoraires à la charge du vendeur
Date de réalisation du diagnostic énergétique : 20/11/2024
Consommation énergie primaire : 521 kWh/m²/an (Classe G)
Consommation d’énergie finale : Non communiqué.





















